Comforia Higashi-Shinjuku, located at 6-27-48 Shinjuku, Shinjuku-ku, Tokyo, offers a prime living experience just two minutes' walk from Higashi-Shinjuku Station. This property, spanning about 80.3 square meters, marries convenience with modern living, set in a vibrant urban locale. It’s suited for those who appreciate a bustling city life paired with the comforts of a well-appointed residence.
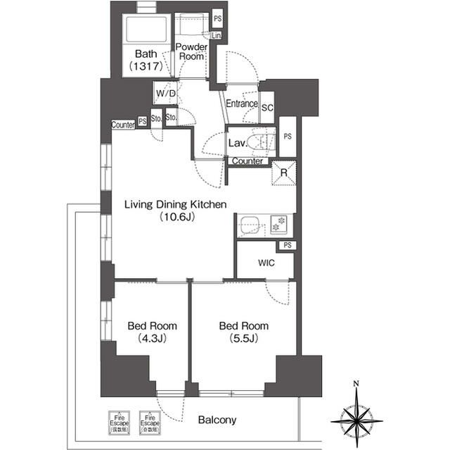
The apartment boasts a 2LDK configuration, which includes two bedrooms, a living-dining area, and a kitchen. The thoughtful layout maximizes space and natural light, particularly with its dual balconies and multiple windows, ensuring that each room is airy and bright. Each space is distinctly allocated, promoting both functionality and privacy.
Inside, the apartment features high-quality finishes including all wooden flooring and a system kitchen equipped with a gas stove and countertop design. The inclusion of two air conditioners, floor heating, and a bathroom with reheating capabilities adds a layer of comfort. Notable are the walk-in closet and additional storage solutions like a high-ceiling shoe closet, making it easier to keep the space organized and tidy.
The building's exterior presents a modern facade with clean lines and a double-lock security system, ensuring safety and privacy. The presence of two elevators facilitates easy access to the unit. Additionally, the property's south-facing balcon
*Additional transaction fees will apply




Lorem ipsum dolor sit amet, consectetur adipiscing elit, sed do eiusmod tempor incididunt ut labore et dolore magna aliqua. Ut enim ad minim veniam, quis nostrud exercitation ullamco laboris nisi ut aliquip ex ea commodo consequat. Duis aute irure dolor in reprehenderit in voluptate velit esse cillum dolore eu fugiat nulla pariatur. Excepteur sint occaecat cupidatat non proident, sunt in culpa qui officia deserunt mollit anim id est laborum.
Book property tours at your convenience. Our bilingual agents will guide you through each location and answer all your questions.
Complete the rental application with our support. We help with documentation, guarantor requirements, and communicate with landlords.
Review and sign your lease agreement. We guide you through initial costs including deposit, key money, and agent fees.
Receive your keys and settle into your new home. We assist with utilities setup, resident registration, and neighborhood orientation.