レジディア六本木檜町公園 113

東京都港区赤坂6丁目19-50
train-line
六本木 駅 - 7 徒歩分数
train-line
赤坂 駅 - 6 徒歩分数
train-line
六本木一丁目 駅 - 12 徒歩分数

この物件の掲載は終了しました

他の物件を探す
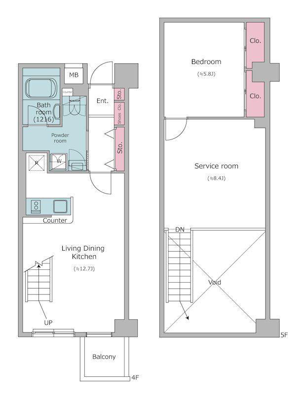
1LDK
1BR
31m²
1/8F

物件の特徴

pet自動ロック
petバスとトイレが別々
pet駐輪場
pet宅配ボックス
petエレベーター

物件情報

RESIDIA Roppongi Hinokicho Park offers a compact 1LDK layout spanning 31.15 m². This well-situated apartment is ideal for urban dwellers looking for a combination of convenience and comfort. Just a short walk from Akasaka and Roppongi stations, it provides easy access to Tokyo's vibrant lifestyle. With a monthly rent of ¥180,000 and a management fee of ¥10,000, this property is competitively priced in an area known for its dynamic living.

The apartment features a thoughtful floor plan that separates the bath and water closet, enhancing privacy and functionality. The living area is designed for versatility, with ample natural light thanks to two-sided lighting. The wooden flooring adds a warm touch, while the system kitchen equipped with a two-burner stove caters to culinary enthusiasts. An independent washroom and indoor laundry further add to the practicality of the space.

Inside, the interior has been remodeled to reflect modern aesthetics, complete with air conditioning, a TV intercom, and a bathroom that features a reheating function. The warm water washing toilet seat and bathroom dryer enhance comfort and convenience. Thoughtful storage solutions include an entrance storage and a shoe box, making the most of the available space.

The exterior of the building is equipped with essential amenities such as bicycle parking, a delivery box, and round-the-clock garbage disposal. The property is designed with safety in mind, featuring surveillance cameras and an auto-lock system. Residents can enjoy the peace of mind that comes with

間取り
1LDK
ベッドルーム
1
広さ
31m²
築年数
1999-09
1/8
入居条件
'25年6月上旬
構造
鉄筋コン
向き
北東
初期費用はクレジットカードでお支払いいただけます

*追加の取引手数料が適用されます

JcbMastercardVisaAmex

この建物内の他の空室物件

地図

申請プロセス

1

内見を予約する

ご都合に合わせて物件の内見を予約できます。バイリンガルの担当者が各物件をご案内し、ご質問にお答えします。

2

申し込みを提出する

私たちのサポートで賃貸申込書を完成させます。書類や保証人の要件についてサポートし、家主との連絡も代行します。

3

契約を締結し、費用を支払う

賃貸契約書を確認・署名します。敷金、礼金、仲介手数料などの初期費用についてもサポートします。

4

入居する

鍵を受け取り、新しいお住まいに入居します。光熱費の契約、住民登録、周辺案内もサポートします。

お問い合わせ

*
*
*
*
E-Housing レジディア六本木檜町公園 賃貸 | 1LDK 東京都港区赤坂6丁目19-50 | E-Housing