概览:RELUXIA Sumida Yahiro 位于充满活力的隅田区,提供 41.35 平方米的紧凑型居住空间,设计兼顾高效与舒适。月租金 136,000 日元,另加 20,000 日元管理费。该公寓允许养宠物,并满足多元化的生活方式,非常适合年轻的职业人士和情侣。
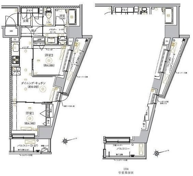
户型:2DK 户型包含两个独立的房间,可分别用作卧室和起居/用餐区。独立的浴室和卫生间设计,因其便利性而备受青睐。双阳台增强了自然采光,使这套边角户型拥有双面通风的优势。
室内:公寓铺设时尚的木地板,与现代美学相得益彰。配备燃气灶、带淋浴的洗手盆以及安全自动锁等基本设施。配备电视对讲系统和带加热功能的浴室,提升了居住的便利性和舒适度;室内洗衣区则更添实用性。
外观:大楼外立面维护良好,铺设瓷砖,并设有自行车停放区,方便环保人士使用。高速光纤网络让您无需额外支付网络费用即可保持网络连接。步行 10 分钟即可到达多个火车站,方便前往市区;此外,大楼内 24 小时提供垃圾处理服务,方便快捷。
*将收取额外交易费用




Lorem ipsum dolor sit amet, consectetur adipiscing elit, sed do eiusmod tempor incididunt ut labore et dolore magna aliqua. Ut enim ad minim veniam, quis nostrud exercitation ullamco laboris nisi ut aliquip ex ea commodo consequat. Duis aute irure dolor in reprehenderit in voluptate velit esse cillum dolore eu fugiat nulla pariatur. Excepteur sint occaecat cupidatat non proident, sunt in culpa qui officia deserunt mollit anim id est laborum.
根据您的时间安排预约房产参观。我们的双语经纪人将带您参观每个地点并解答所有问题。
在我们的支持下完成租赁申请。我们协助准备文件、担保人要求,并与房东沟通。
审核并签署您的租赁合同。我们将指导您支付押金、订金和中介费等初期费用。
领取钥匙并搬入新家。我们协助办理水电煤气、居民登记以及周边环境介绍。